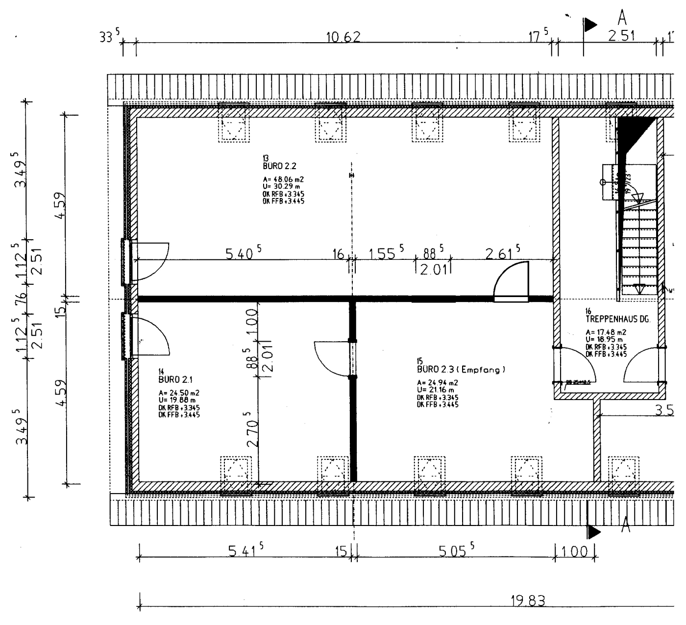
Vermietung Obergeschoß Westseite
Diese Fläche besteht aus 3 Räumen und ist insgesamt 98 m² groß.
Vom Treppenhaus gelangen Sie in den ersten Raum. Dieser kann als Empfangsbereich dienen, bietet Platz für einen
großzügigen Schreibtisch und dort befindet sich eine Küchenzeile, wo Kaffee für Gäste und Kunden zubereitet werden
kann. Durch die 2 Dachflächenfenster nach Süden kommt viel Licht in diesen Raum.
Geradezu befindet sich ein abgeschlossener Raum mit wiederum 2 Dachflächenfenstern nach Süden und einer großen
Glastür nach Westen, die bis zum Fußboden reicht.
Vom Empfang nach rechts gelangen Sie in den größten Raum. Dieser hat insgesamt 4 Dachflächenfenster und eine große Glastür nach Westen. Die metallene Absturzsicherung vor den Glastüren nach Westen lässt sich entfernen, so dass schwere Möbel oder Geräte relativ einfach von der Straße in die Räume gelangen können.
An den Außenseiten und z.T. in der Trennwand zwischen den Räumen befinden sich Kabelkanäle
mit Telefonsteckdosen, 220V-Steckdosen, SAT-TV-Anschluß und Netzwerkverkabelung.
Der große Büroraum kann bei Bedarf in der Mitte durch eine Wand aufgeteilt werden.
